2025.05.20
間取り・戸数も自由自在”ぜんぶ、おもいのままに”アパート建設中👷🏻🔨
こんにちは!マリモハウスの太治です。
安佐南区西原にて建設中の3階建て木造アパート(2×4工法・全21戸)の様子をご紹介します!
今回は建設中の「骨組み(構造部分)」にご注目!🤗
普段は見えない部分だからこそ、こだわりポイントをお伝えします!

「2×4工法(ツーバイフォー)」とは?
「枠組壁工法」とも呼ばれ、壁の“面”で建物を支える構造です。
👇特徴はこちら👇
・隙間が生まれにくく、高気密・高断熱性で快適な暮らしを実現◎
・地震や火事にも強い優れた耐震性・耐火性👌🏻
・工場で事前加工された建材を使うため、工期が安定しやすいというメリットも!



一般的に3階建てアパートは鉄骨やRCなどをオススメされることが多いですが、
マリモハウスなら木造で頑丈な3階建てを建てられる技術力があります!
✨木造3階建てアパートの魅力✨
▶鉄骨やRCに比べて建築コストを抑え、初期費用削減!
▶間取りの自由度が高く、1Kとファミリータイプ混在などもOK💪🏻
▶土地の形状に合わせたプラン設計も可能◎
オーナー様のご要望に合わせて、収益性の高いプランをご提案します。
もちろん、木造以外の構造をご希望の場合も対応可能です!
アパート経営も「ぜんぶ、おもいのままに」マリモハウスにぜひおまかせください🥰
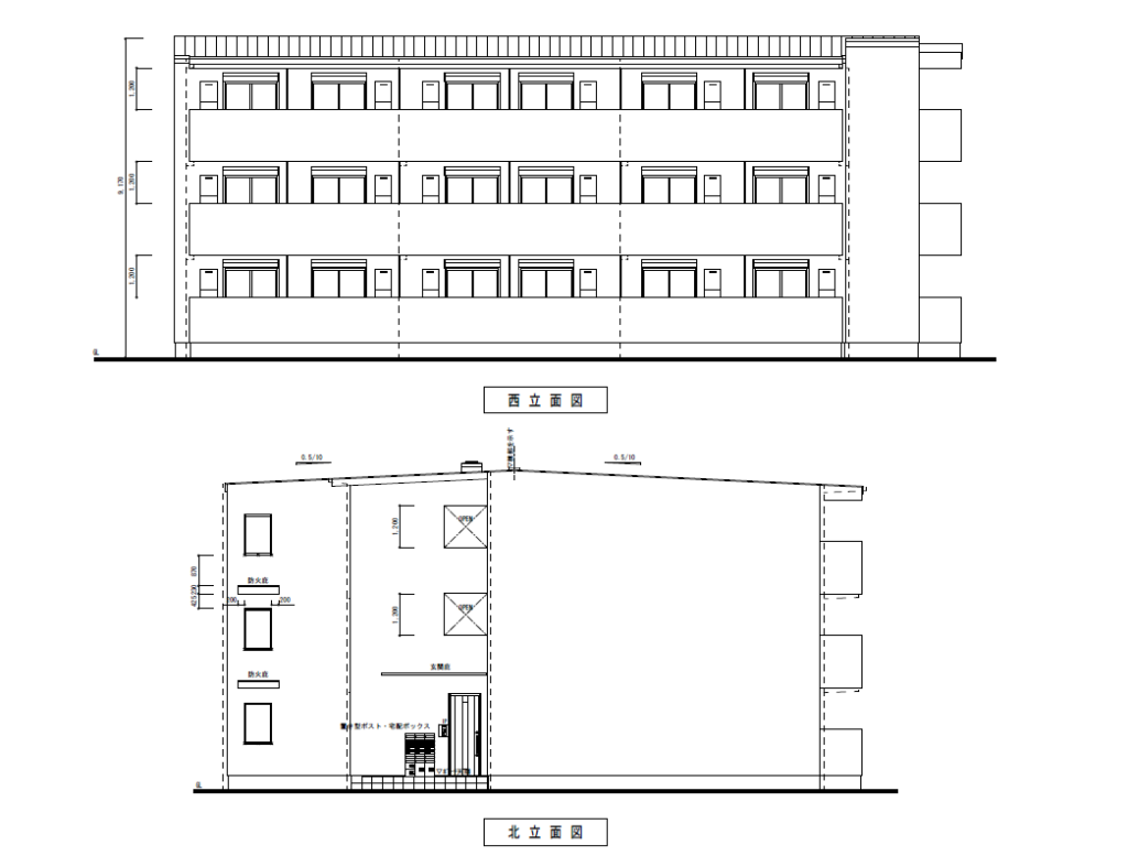
【完成イメージはコチラ!】


<立面図>

【アパート詳細情報】
西原2丁目アパート(仮称)
3階建て木造アパート(2×4工法)21戸
敷地面積:647.92㎡/延べ床面積:669.72㎡
土地の形に合わせて利回りをしっかり回すプランをご提案しました。
単身~2人以上の同居にも対応できる間取りにしたことで、より幅広い層に選ばれるアパートになっています👥🌟
入居者にも嬉しい住み心地
▶開放感たっぷりのカウンターキッチン🍽️
▶2人暮らしでもゆったり使える広さを確保!
▶シックな内装でデザイン性も◎😎🩶
【物件MAP】
オーナー様と一緒につくるアパートも「ぜんぶ、おもいのままに」
マリモハウスは戸建て住宅はもちろん、アパート建築も得意分野🙆🏻
自由設計だからこそできる、土地に合わせた最適なプランニングをご提案します。
理想の賃貸経営を一緒に形にしませんか?🙌
📞 アパート経営をご検討中のオーナー様へ
アパート建築のご相談や現場見学、随時受付中!
お気軽にお問い合わせください。
マリモハウスTEL:0120-806-080(営業時間9:00~18:00)